Sistema de carpintería corredera ideal para ventanas, balconeras y puertas. Se caracteriza por su diseño funcional, facilidad de fabricación y un precio muy competitivo. La solución perfecta para proyectos que requieren eficiencia, estética y buenas prestaciones térmicas y acústicas.
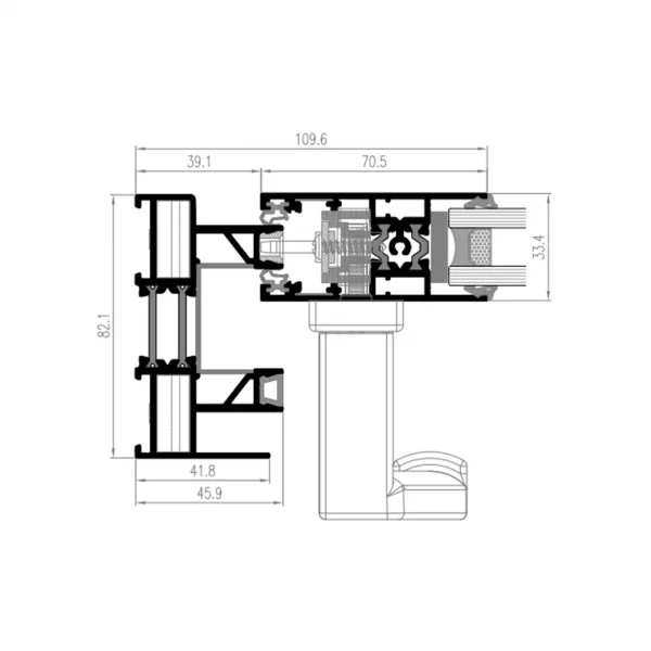
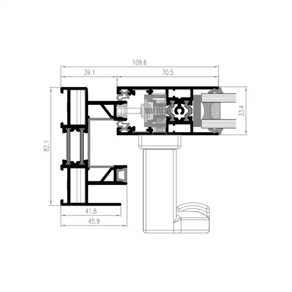
Gracias a su diseño con perfiles mínimos y alto rendimiento, esta corredera permite una gran entrada de luz natural sin renunciar al confort interior. Incorpora juntas de EPDM en triextrusión que mejoran notablemente la estanqueidad y la permeabilidad al aire. Además, admite cierre multipunto y motorización.
- Permite cargas de hasta 150 kg por hoja
- Cierre convencional embutido o multipunto
- Juntas EPDM de triextrusión con gran estanqueidad
- Cruce reducido de solo 28 mm
- Compatible con otros sistemas del grupo
- Disponible con marcos de 54 mm y 82 mm















